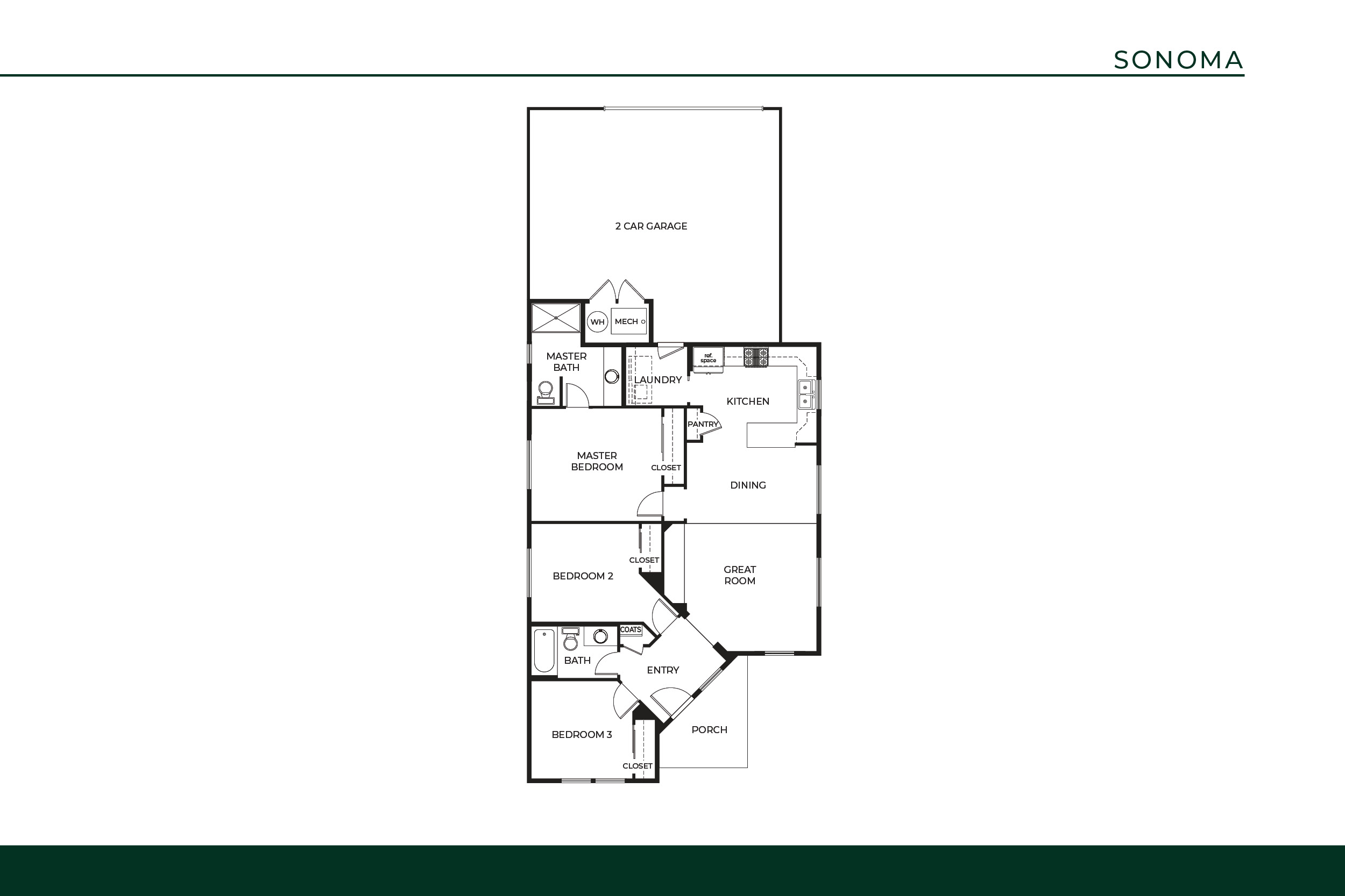
Sonoma Home Plan In Trutina at Mead Works
The Sonoma’s spacious and welcoming entryway leads into an open concept main floor with master bedroom, two secondary bedrooms and a large great room. The patio is conveniently accessible from the dining room and the living room, which features a built-in entertainment alcove and bookcase.
The following images are of a previously built home of the same plan. Greenstone is always trying to improve the way we build, home layouts and design features may differ from what is shown.
Interactive Floor Plan
Below are some of the structural options we offer in our home plans. We have this feature to help you envision how they change the space. For a list of complete options click the “Download Options Sheet” link above.
Quick Move-Ins
Discover which home option suits you best, whether it’s the convenience of a Quick Move-in or the customization of a Presale, and start your homeownership journey today.
Sonoma
Quick Move-In
$482,000
Move-in Ready
23016 E Edgewater Ln
Sonoma
Quick Move-In
$522,000
Move-in Ready
12223 N Dupont Dr
Take a 3D Tour
The following 3D tour is of a previously built home of the same plan. Greenstone is always trying to improve the way we build, home layouts and design features may differ from what is shown.
Homes available for Pre-sale
Choose your floor plan. A pre-sale home will be built from scratch based on your selections. You choose your community, home site, floor plan and designer options. Our in-house design team will guide you through the process of personalizing the selections for your home.
Trutina at Mead Works
$479,000
Ready to make the move?
Discover which home option suits you best, whether it’s the convenience of a Quick Move-in or the customization of a Presale, & start your homeownership journey today.

Presale Homes
Home is the start of every adventure and the comfort at the journey's end. With more floor plans and personalization options, we help you create a space that's truly yours

Quick Move-Ins
Looking to move now? Explore our Quick Move-in homes, thoughtfully curated by our skilled design team exclusively for you. Embrace the new home experience without the wait.

Find More Homes

ALL COMMUNITIES
New construction neighborhoods throughout the Inland Northwest.

ALL HOME PLANS
Find a home plan that fits your lifestyle. Then, make it yours with custom features & finishes.

ALL AVAILABLE HOMES
Our quick move-in homes are fast-tracked for completion with details selected by our Design Studio team.
Eager to learn more about Trutina at Mead Works?
Connect with the community agent for answers to your questions and to kickstart your journey!